С 1 февраля 2026 года изменятся правила предоставления семейной ипотеки. Каждая семья сможет взять только одну ипотеку со льготной ставкой, сообщает «РБК».
Вторая семейная ипотека с «Территорией жизни»: привлекательные условия в декабре
«При действующих правилах у каждого из родителей есть возможность оформления семейной ипотеки. И многие семьи пользовались этой возможностью. Например, одна квартира приобреталась для семьи, вторая – для детей. Или же второй раз семья улучшала свои жилищные условия. По новым правилам супруги должны будут стать созаемщиками, что закроет возможности оформления.
Поэтому тем, кто имеет право на ипотеку, нужно действовать до Нового года. С одной стороны – у вас еще остается право на вторую семейную ипотеку. С другой – именно сейчас застройщик предлагает привлекательные условия покупки», – рассказывает коммерческий директор группы компаний «Территория жизни» Оксана Маркова.
Какие выгодные условия для оформления второй льготной ипотеки предлагает ГК «Территория жизни»?
Льготная ставка
«Территория жизни» предлагает особо выгодную ставку (полная стоимость кредита – от 6,343 до 24,669%) от 4,6% годовых* – одно из лучших предложений на рынке. Благодаря ней ваш ежемесячный платеж гарантированно низкий.
Рассмотрим на конкретном примере. Для молодой семьи идеально подойдет квартира в третьем строении «Лугометрии», части двора «Флоксы». Кухня, две жилые комнаты, одна из которых в будущем может стать детской. И это с платежом от 22 000 рублей в месяц!*

И все это – с полностью готовой отделкой, кухней и техникой. Вы покупаете полностью готовую для семейной жизни квартиру. Обои оклеены, уложен паркет, санузел оборудован всем необходимым и отделан керамогранитом. Натяжные потолки готовы, уже подключены точечные светильники, а на стенах оборудованы розетки. Оставить заявку на квартиру можно уже сейчас.

Оформление квартиры с отделкой «Все включено».
Больше интересных планировок – на сайте.
Новогодние скидки
Перед праздниками застройщик делает всем клиентам подарок – скидки до 10% на квартиры в сданных домах. Можно успеть получить ключи от нового дома и встретить 2026 год счастливым собственником своей квартиры.
Этот вариант подойдет паре, которая готовится стать собственником первой квартиры. Большая площадь и возможности для зонирования будут актуальны для хозяев.

Для большой семьи отличным подарком станет квартира с отделкой в современном, развивающемся микрорайоне. Лучший выбор – «Арбековская застава». Только в декабре можно оформить сделку с ежемесячным платежом от 31 000 рублей.

Ремонт уже сделан, остается привести мебель и бытовую технику в новую квартиру с отделкой Smart PRO, в которую входят обои, натяжные потолки с освещением, ламинат, межкомнатные двери, кухонный модуль и стиральная машина. Можно заполнить форму, и с вами свяжутся.

Вариант оформления квартиры с отделкой Smart PRO.
Многие другие квартиры можно оценить на сайте территорияжизни.рф.
Проекты от «Территории жизни» стали домом уже более чем для 18 000 пензенцев. Причины, по которым сделали выбор, много: развитая качественная инфраструктура, высокие стандарты строительства, справедливая цена и полностью готовая отделка. Станьте и вы обладателем квартиры от «Территории жизни» на выгодных условиях.

Успейте воспользоваться правом на вторую семейную ипотеку. Есть ли у вас возможность ее оформления и как это сделать, можно узнать в отделе продаж ГК «Территория жизни» по адресам:
-
ул. Героя России Жоги, 3;
-
ул. Складская, 19С.
Также дополнительные вопросы можно задать по телефону 203-000. Или оставьте заявку по форме, и с вами свяжутся.
* ОЦЕНИВАЙТЕ СВОИ ФИНАНСОВЫЕ ВОЗМОЖНОСТИ И РИСКИ. ИЗУЧИТЕ ВСЕ УСЛОВИЯ КРЕДИТА (ЗАЙМА). ПСК (полная стоимость кредита) – 6,343-24,669%, процентная ставка – 6% годовых – доступна в рамках программы ПАО Сбербанк «Ипотека с государственной поддержкой для семей с детьми» на срок кредитования от 12 до 360 месяцев с условием субсидирования процентной ставки застройщиком – партнером Банка при приобретении строящегося жилья у юридического лица по ДДУ/ДУПТ или готовое жилье у застройщика – партнера Банка при первоначальном взносе от 20,1% от стоимости кредитуемого жилого помещения. Минимальная сумма кредита – 300 тыс. руб. Максимальный размер кредита – до 6 000 000 руб. Валюта – рубль РФ. Кредит предоставляется гражданам РФ, имеющим несовершеннолетнего ребенка до шести лет; установлена категория «ребенок-инвалид»; либо двое или более детей, граждане РФ, один из которых не достиг возраста шести лет на дату заключения кредитного договора. Необходимо предоставление свидетельств о рождении и подтверждение гражданства всех детей. Полные условия – на сайте https:// domclick.ru/.
Расчет произведен для двухкомнатной квартиры площадью 53,19 кв.м., расположенной по адресу: РФ, Пензенская область, г. Пенза, ул. Побочинская. Застройщик – ООО СЗ «Жилье». Проектная декларация размещена на сайте наш.дом.рф. Уточняйте подробности у организаторов по телефону 203-000.
** Название акции – «Новогодние скидки», организатор – ООО «МК». В рамках акции клиенту предоставляются скидки в размере не более 10% от указанной стоимости в ряде сданных строений ЖК «Арбековская застава» и «Лугометрия» по адресам: г. Пенза, ул. Яшиной, 2, 4, 5, 6, 8, 9; ул. Ген. Глазунова, 11.
Срок действия акции – с 01.12.2025 г. до 31.01.2026 г. Количество квартир, участвующих в акции, ограничено – 10 квартир. Уточняйте подробности у организаторов по номеру 203-000.
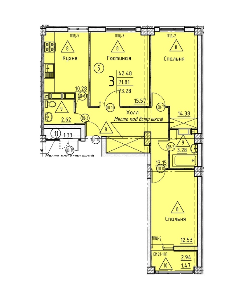
Расчет произведен с учетом дополнительной скидки 10% для трехкомнатной квартиры площадью 73,28 кв. м, расположенной по адресу: Пензенская область, г. Пенза, ул. Генерала Глазунова 11. Застройщик – ООО СЗ «Смарт +». Дом введен в эксплуатацию.
Реклама. Заказчик – ООО «МК». ИНН 5835138537. Erid: 2SDnjdWjTxB


, копия (4) (1).gif)












.jpg)